汪曾祺曾在《人间有味》里写到:人生忽如寄,莫负茶、汤、好天气。
毕竟生活在快节奏的都市中,每个人都渴望远离纷扰,寻到一处幽静的天地,让人的心灵与精神得到安放,过上一种简单纯粹的悠然生活。
本期给大家分享的家居案例来自成都,屋主是90后年轻妈妈,不仅工作严谨、细致、敏锐,对新家的细节设计也是如此。
维顺安设计师根据她的喜好和生活习惯,全屋采用现代原木混搭风格,通过大量的藤编、原木和绿植等自然元素,营造出一个温润淡雅的家居氛围。
不仅装下她的爱好和闲趣,更装下每日辛劳后,那份独属于她的“诗意”生活。
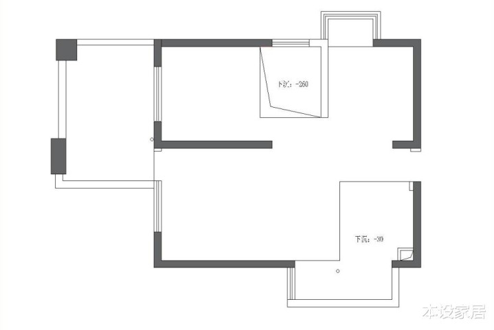
平面布置图
这套房子建筑面积85㎡,是小二居的户型,毛坯房的厨房和卫生间没有隔墙,但整体来看比较方正,平面布局基本保留了原有功能空间。
入户门的左边是客厅、餐厅和开放式厨房,右边是卧室和卫生间,还配置了一大一小的阳台,可以说功能齐全,动线清晰。
玄关
原有户型没有独立玄关,顺势在没有隔墙的次卧,定制了两组背对背的到顶储物柜,朝玄关的柜子满足一家人进出门鞋靴、衣物和包包的收纳需求,而朝次卧则是衣柜,而隐形房门的设计,墙面看起来更加整洁,十分完美。
客厅
往里是客厅、餐厅和开放式厨房[LDK]的一体化设计,空间的连贯性让视野更加开阔,增加更多的互动,乍一看仿佛是120㎡的空间既视感。
客厅地面满铺“人字拼”木地板,墙面是米白色和浅灰色的碰撞,天花则是更现代的无主灯设计,搭配暖黄色的沙发和极简装饰画,再加上暖灯光的渲染,处处透着一股温润雅致的韵味。
沙发旁的绿植是点睛之笔,温馨自然,彰显出这位年轻妈妈对生活品质的追求。
餐厅
餐厅选用实木+大理石的圆形餐桌,搭配造型简约的酒红色餐椅,不多不少,给人一种“出则繁华,入则宁静”的感觉,放眼望去就是一道美丽的端景,真是赏心悦目。
厨房
U型的开放式厨房提供了更多的收纳空间,嵌入式安装实用的厨房电器,洗-切-炒动线也很流畅。
灰色的橱柜+岛台自带静谧感,搭配墨绿色和黑白纹理的大理石,带来视觉冲击的同时,也演绎出一场高级感拉满的生活剧幕,不管是独处,还是共聚,皆成诗章。
主卧
主卧延续了整体现代原木的格调,地面铺设木地板,墙面大面积刷米白色漆,并保留了飘窗,而床架和床品同样选用米色系,搭配浅韵的装饰画,散发出一种怀旧复古的静谧氛围感。
同时,靠墙定制一组到顶的储物柜,美观大气,内部有挂、有叠的隔断,确保分类收纳不杂乱。
次卧
儿童房的色调柔和温暖,营造出温馨舒适的氛围。
家具选用线条简洁圆润,避免磕碰,红色台灯的点缀,为空间增添一份童趣。
卫生间
卫生间面积约4㎡,将洗漱台外置实现干湿分离,洗漱-洗澡-互不干扰,门的设计追求简约视觉感,贴合个性化需求。
洗漱台摒弃了传统的台下储物柜设计,也解决了可能存在漏水、受潮等问题,将收纳隐藏到右侧顶天立地窄柜中。
淋浴区和马桶区以白色色大理石肌理的瓷砖打造,搭配玻璃隔断,通透、清爽、利落。
看完全屋,才发现这是我见过最舒心的家,根本挑不出毛病,很多细节值得参考,忍不住分享给大家瞧瞧,感谢您的阅读,下期见!
大牛证券提示:文章来自网络,不代表本站观点。